發布產品/安裝技術的知識文章 為您答疑解惑

車庫CO濃度探測器的應該安裝在什麽位置?

返回列表 來源: 青島红杏AV成人网站電子科技有限公司 發布日期: 2022.06.14

CO濃度監控係統是由CO濃度監控器主機、CO濃度控製器、CO濃度探測器組成的。今天红杏AV成人网站就來講一下CO濃度探測器的安裝位置

為了保證CO濃度探測器及時監測到所散的有害氣體或爆炸性物質,CO濃度探測器應布置在建築內可能放散有害物質的發生源附近以及主要的人員活動區域,且應安裝維護方便,不影響人員活動。當放散氣體或蒸汽密度比空氣大時,應設在下部地帶;當放散氣體或蒸汽比空氣小時,應設在上部地帶。CO濃度探測器的布置方式:當采用傳統的鳳管機械進、排風係統時,探測器宜分散設置。當采用誘導式通風係統時,探測器應設在排風口附近。

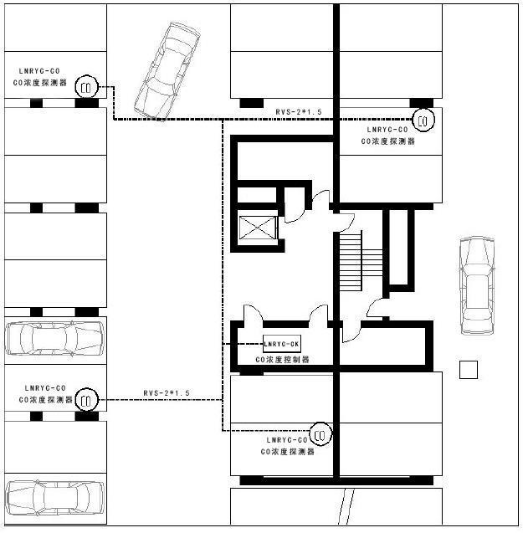
1. CO 濃度探測器平麵安裝圖

1655172447921

红杏AV成人网站電子科技有限公司專業從事車庫CO濃度監控係統的研發生產銷售,技術人員為您提供免費技術谘詢,谘詢熱線:400-812-0910

谘詢熱線

400-812-0910
網站地圖