發布產品/安裝技術的知識文章 為您答疑解惑

車庫如何設置CO探測器安裝數量

返回列表 來源: 青島红杏AV成人网站電子科技有限公司 發布日期: 2023.05.12

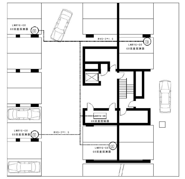
車庫CO探測器安裝高度和數量:

1、車庫CO探測器安裝高度建議距地麵1.5m 左右為宜;

2、車庫CO探測器的數量設置主要根據防火分區、麵積大小等因素來酌情考慮,一般200-300m2左右一個;

3、空氣質量控製器一般安裝在風機配電箱中,也可配防水箱體進行單獨安裝;

4、車庫一氧化碳濃度監控主機安裝在消防控製室內。

車庫CO探測器平麵安裝圖

青島红杏AV成人网站電子科技有限公司專注於車庫 CO探測器的研發和生產,現廠家直銷,可免費提供圖紙深化和方案設計;了解詳情請撥打電話:400-812-0910

谘詢熱線

400-812-0910
網站地圖