發布產品/安裝技術的知識文章 為您答疑解惑

红杏AV成人网站電子红杏导航在线入口深化設計說明

返回列表 來源: 红杏AV成人网站红杏导航在线入口專業生產廠家 發布日期: 2019.11.07

红杏AV成人网站電子--红杏导航在线入口深化設計說明(供參考)

1.工程概況:

工程名稱:xxxx項目

項目建設地點:xxxxxxx

建設麵積:xxxxx平方米

結構形式:框架剪力牆結構

設計單位:xxxxxx

設計時間:xxxxxx

2.設計依據:

各市政主管部門對各階段設計文件的審批意見;

《建築防煙排煙係統技術標準》                                               GB 51251-2017;

《建築設計防火規範》                                                        GB 50016-20142018年版);

《火災自動報警係統設計規範》                                               GB 50116-2013;

《低壓配電設計規範》                                                        GB 50054-2013;

《通用用電設備配電設計規範》                                               GB 50055-2011;

《民用建築電氣設計規範》                                               JGJ 16-2008;

其它有關國家及xx市現行的規範和標準;

土建設計單位各專業提供的設計資料。

3.深化設計範圍:

本設計包括紅線內所有單體建築物的加壓送風控製係統。

本工程普通送排風和排煙、補風等其他內容,不在本深化設計範圍內。上述內容應以土建設計單位的設計文件為準。

本深化設計文件的編製,基於本工程已通過國家和消防主管部門審查的土建設計單位施工圖階段設計文件為基礎。如有差異,應以土建設計單位施工圖階段設計文件為準。

為保證本工程的完整性,業主單位在招標和工程實施階段,除使用本深化設計的全部設計文件以外,還應包含本深化設計未做修改的,由土建設計單位施工圖設計階段提供的各單體空氣調節平麵圖等設計文件。

4.設計內容:

安防消防控製室設置在1#樓地下一層。消防控製室負責本工程所有單體建築物加壓送風係統的監視和控製。

本工程加壓送風控製係統由红杏成人看片下载APP、餘壓控製器、泄壓閥執行器和係統主機組成。係統控製方式為集散式控製係統。

加壓送風控製係統由一台係統主機、五十一台控製器和二百零七套红杏成人看片下载APP組成。設備的具體數量詳見主要設備清單。

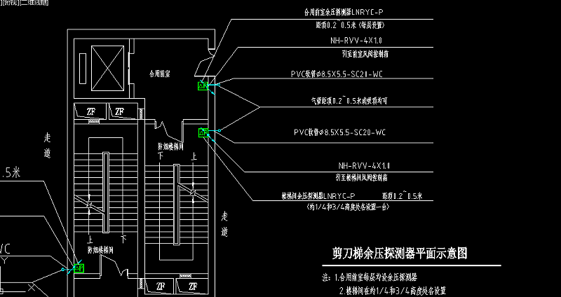
本工程在建築物內公共區域走道、封閉樓梯間、防煙樓梯間及其前室、消防電梯及其前室或合用前室等處設置红杏成人看片下载APP,用於檢測相應區域兩側的壓力差值;加壓風機處設置餘壓控製器,當加壓送風機啟動後,控製器根據红杏成人看片下载APP超壓/加壓動作指令,控製泄壓閥動作,確保上述區域的壓差值滿足規範要求;泄壓閥處安裝泄壓閥執行器,用於將控製器輸出的控製信號轉換為執行動作,控製泄壓閥的開關,實現加壓送風係統的風量隨係統調節;係統餘壓監控器安裝在安防消防控製室。

係統供電電源:餘壓控製器、泄壓閥執行器、係統主機采用AC 220V供電,红杏成人看片下载APP采用DC 24V電壓供電。其中,红杏成人看片下载APP采用總線供電方式由餘壓控製器為其提供電源。

4.1係統功能

4.1.1 红杏成人看片下载APP:

红杏成人看片下载APP采用高精度精密MEMS器件和數字化技術,采集機械加壓送風區域(防煙樓梯間、獨立前室、合用前室、共用前室及消防電梯前室)的壓力差值,將該壓力差值與傳感器內部設定超壓值進行比對,判斷是否超壓,並發出相應超壓/加壓指令,通過通訊總線傳送給餘壓控製器。

4.4.2 餘壓控製器:

控製器由電源模塊、輸入/輸出單元、控製單元、通訊模塊和保護單元組成。

火災發生時,機械加壓送風機啟動,餘壓控製器根據接收到的壓力差值傳感器超壓/加壓指令,控製加壓送風係統泄壓閥的開關,從而控製加壓送風機的送風量,實現上述各部位和區域的機械加壓送風係統的自動控製。

正常情況下,餘壓控製器不工作,隻有當火災發生時,餘壓控製器接收到機械加壓送風機工作後的聯動控製信號後方才投入工作。

泄壓閥所有的工作狀態可在餘壓控製器和係統主機上顯示。控製器自身具有自動和手動控製、檢測功能。

4.1.3 泄壓閥執行器:

泄壓閥執行器根據餘壓控製器的輸出信號,通過泄壓閥執行器自動控製泄壓閥的開關,實現走廊至前室至樓梯間的壓力呈遞增分布,滿足規範對機械加壓送風係統餘壓值的要求。

泄壓閥執行器除具有自動控製功能外還具有手動控製功能,當控製器出現故障時,可以手動操作執行器開啟或關閉泄壓閥。

4.1.4 餘壓監控器:

係統主機用於監視和控製本工程所有機械加壓送風係統的工作狀態和報警信息的處理。係統允許當餘壓監控器或通訊網絡敷設故障時,餘壓控製器自主工作,滿足係統對可靠性指標的要求。

4.2係統供電

機械加壓送風控製係統的電源為一級負荷,采用兩路電源供電,並在末端設置自動切換裝置。餘壓控製器電源由本區域的消防專用交流電源供電,即直接引自機械加壓送風機配電(控製)箱電源。

係統主機除采用兩路電源供電外(消防專用電源),

餘壓控製器輸入電源:AC 220V±15%,電源頻率:50HZ,額定功率:36W。

餘壓監控器輸入電源:AC 220V±15%,電源頻率:50HZ,額定功率:70W。

红杏成人看片下载APP輸入電源:DC 24V,采用總線供電方式,無需另外提供電源。

所有红杏成人看片下载APP與餘壓控製器之間采用四總線製。控製器與係統主機的通訊協議為二總線製。

4.3控製方式

泄壓閥執行器有自動和手動兩種控製方式,其中,自動控製用於正常工作狀態,為控製器的主要工作方式;手動控製為非正常工作狀態和調試狀態,為控製器的輔助工作方式。

自動控製方式時,加壓送風控製係統接受火災自動報警和消防聯動控製係統的聯鎖控製,聯動控製信號取自加壓送風機配電(控製)箱,火災發生時,加壓送風機啟動,係統控製泄壓閥開度,以滿足相應區域壓差值被控製在規範要求的範圍內。

4.4設備選擇和安裝

本工程加壓送風控製係統按LNRYC係列疏散通道红杏导航在线入口設計,其全係列采集設備、控製設備、執行器和主機設備,均為符合國家相應法律、法規要求的合格產品。同時,係統通過的合理化控製,在滿足消防應急工作狀態要求的前提下,最大限度地節約了能源消耗和重金屬對環境的影響。

安裝在室外區域的控製器箱防護等級為IP66。

4.5電纜、導線的選型及敷設

本工程红杏成人看片下载APP、餘壓控製器和泄壓閥執行器之間的線纜規格有原設計確定,通訊總線選用NH-RVS-4x1.0-SC15。所有類型線路均穿金屬保護管敷設。

電力電纜和導線在電氣豎井或吊頂內敷設時,均應穿焊接鋼管SC保護。

采用有機絕緣耐火電纜為消防設備供電的線路,采用明敷設或吊頂內敷設時,應穿金屬管或封閉式金屬線槽保護,所穿金屬管或金屬封閉式線槽應采取防火保護措施。

通訊線路和50V以下供電的控製線路,應采用電壓等級不低於交流300/500V的銅芯絕緣導線或銅芯電纜。采用交流220/380V的供電和控製線路,應采用電壓等級不低於交流450/750V的銅芯絕緣導線或銅芯電纜。

供電線路和通訊線路設置在地下或濕度大於90%的場所時,線路及接線處應做防水處理。

建築內的強弱電豎井、管道井與房間、走道等相連的孔洞等,所有管線均應根據《建築防火封堵技術規程》CECS 154-2003的相關要求做防火封堵處理。

4.6安全接地

消防應急照明和疏散指示係統的接地裝置應滿足,當建築物采用共用接地裝置時,接地電阻值不大於1.0Ω。

所有電氣和電子設備的金屬外殼、機櫃、機架、金屬管、金屬線槽等,應采用等電位連接。

安防消防控製室的接地及各種餘壓監控器、控製器、消防設備等的接地要求,應符合條件設計單位和消防改造設計單位的有關規定。

4.7其它

本深化設計文件應提供給業主單位,並由設計單位確認方可施工。

通訊總線長度超過規範限定值或線路敷設受現場施工條件限製時,應加裝光纖光纜和光纖通訊設備等技術措施,以保障通訊係統工作的安全和可靠。

凡與施工有關而又未說明之處,參見《建築電氣安裝工程圖集》,《建築電氣通用圖集》施工,或與設計單位和設備提供商協商解決。

本工程所選設備、材料必須具有國家級檢測中心的測試合格證書;供電產品、消防產品應具有相應主管部門的入網許可證。

金屬保護管壁厚不應小於1.5mm,直接埋預素土內時應采用鍍鋅鋼管SC。

圖中圖形、文字符號與施工細節做法請參見<<電氣安裝工程施工圖冊>>增訂本。

本套圖紙僅為本工程加壓送風控製係統的深化設計。涉及暖通、給排水、電氣和消防等相關專業圖紙請參見土建設計單位的設計文件。

5.本次深化設計修改的內容:

5.1修改和特征红杏成人看片下载APP的安裝位置,增加红杏成人看片下载APP與控製器之間的電氣管線。

5.2取消所有红杏成人看片下载APP與火災自動報警係統的連接管線。

5.3增加餘壓控製器和執行器及其之間的連接管線。

5.4增加餘壓監控器以及控製器之間與餘壓監控器之間通訊總線的連接管線。

5.5原有加壓送風機和泄壓閥的安裝位置不變。

1

2

3

捕獲1

青島红杏AV成人网站電子科技有限公司,專業從事红杏导航在线入口設計、研發、生產及銷售,參與了數百記項目红杏导航在线入口的設計與安裝,擁有豐富的項目現場經驗,能夠為客戶免費提供红杏导航在线入口方麵專業的深化設計、預埋及安裝建議。

如需红杏导航在线入口方麵的產品及技術谘詢,可撥打400-812-0910。

谘詢熱線

400-812-0910
網站地圖