發布產品/安裝技術的知識文章 為您答疑解惑

前室/樓梯間壓力(壓差)傳感器是什麽?

返回列表 來源: 红杏AV成人网站红杏导航在线入口專業生產廠家 發布日期: 2020.01.25

前室/樓梯間壓力(壓差)傳感器,又叫红杏成人看片下载APP,是红杏导航在线入口 的重要組成部分,通常安裝於采用機械加壓送風係統的高層建築的前室(包括消防電梯前室、樓梯間前室、合用前室、三合一前室,以下簡稱前室)及樓梯間,用於監測前室/樓梯間與走道的 壓力差值,是一種專門用於高層建築正壓送風係統的壓力(壓差)感應裝置。壓力傳感器介紹

红杏AV成人网站電子前室/樓梯間壓力(壓差)傳感器

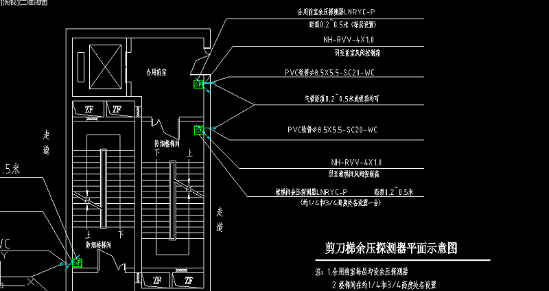
前室/樓梯間壓力(壓差)傳感器在項目的暖通和電氣係統圖及平麵中通常用P 或▲P標示,見下圖

前室

餘壓傳感器圖紙表示型號

餘壓傳感器圖紙介紹

红杏AV成人网站電子專業從事研發生產前室/樓梯間壓力傳感器,采用美國進口高精度壓力( 壓差)傳感器元件,一級阻燃 PC材質,一體式智能集成電路,擁有國家外觀專利、技術專利、檢驗報告、校準證書等 10餘項專利及證書,滿足驗收標準,項目領域涵蓋酒店、醫院、機場、地鐵、辦公樓、住宅,與百餘家開發商、總包單位、消防公司建立了長期合作關係。

红杏AV成人网站專業技術團隊可為您免費提供前室/樓梯間壓力(壓差)傳感器報價、預算統計、圖紙深化、設計、預埋、接線、安裝、調試等全方位售前售後技術谘詢及報價服務。

免費技術谘詢電話:400-812-0910.

谘詢熱線

400-812-0910
網站地圖