發布產品/安裝技術的知識文章 為您答疑解惑

yk-pf在圖紙上是什麽意思,是車庫空氣質量控製器嗎?

返回列表 來源: 青島红杏AV成人网站電子科技有限公司 發布日期: 2021.11.22

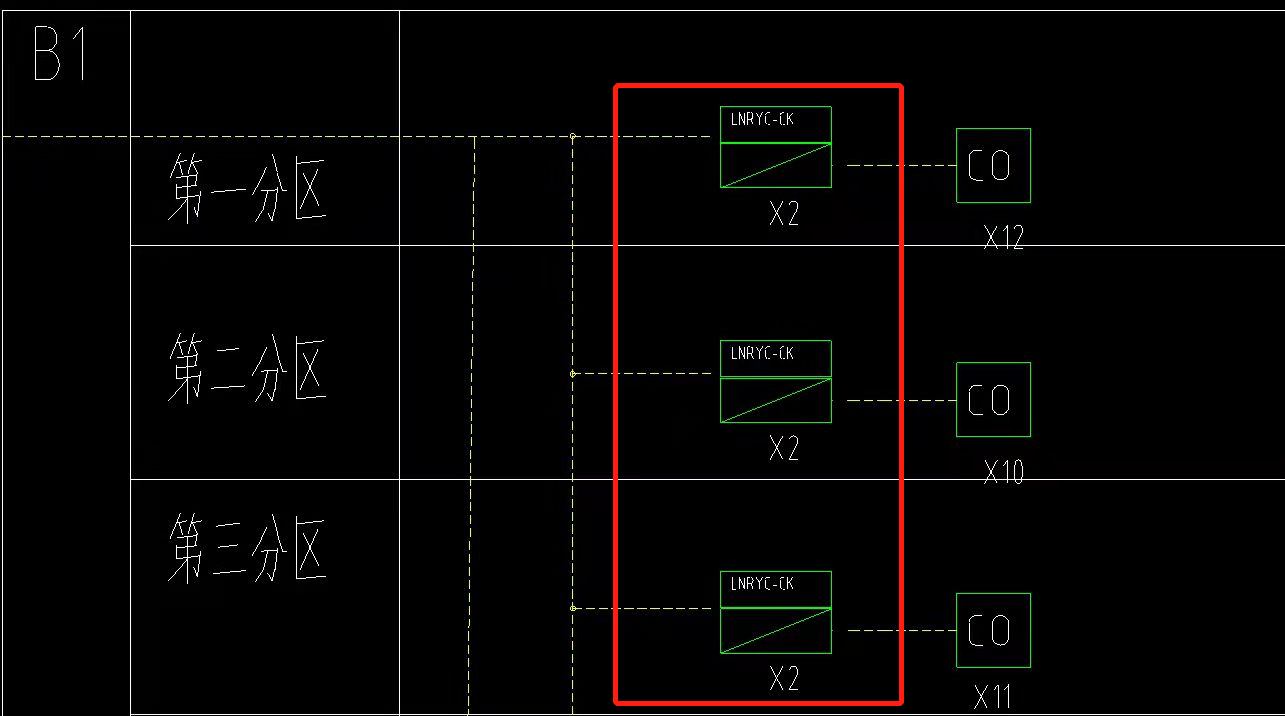
車庫空氣質量控製器圖紙中常見的型號有:LNRYC-CK, YK-PF, YC-PF, YK-KT,等;雖然有不同的型號,但都是指空氣質量控製器,其功能都大同小異,隻是每個廠家命名不同而已。

空氣質量控製器圖紙型號LNRYC-CK,  YK-PF,示意如下:df6256f39363c5f754833abf4be8b2a

efc1f78b849c5a65f6ed5cff5ad593f

LNRYC-CO是红杏AV成人网站電子的一氧化碳探測器型號,而LNRYC-CK是红杏AV成人网站電子一氧化碳控製器(空氣質量控製器)型號,一氧化碳探測器和一氧化碳控製器(空氣質量控製器)是空氣質量監測係統中最主要的兩個組成部分,需配套使用。

180b37b6775dc22fb9570a22bfc9425


红杏AV成人网站電子是國內首家專業從事車庫空氣質量監測係統研發生產的廠家,擁有技術及外觀專利,廠家直銷,品質保證,驗收無憂,質保兩年,歡迎來電詳詢400-812-0910.

谘詢熱線

400-812-0910
網站地圖